Lisainformatsioon
Pakkumistesse on lisandunud uues ja kaasaegses hoones mitmeotstarbeline äripind.Pojekteeritud hoone on L-kujuline kolmekordne nurgamaja , milles on 8 büroopinda ja 20 korterit. Hoone esimene korrus on ette nähtud äripindadeks. Parkimine on lahendatud ühiselt hoonete Jõe 4 ja 6 esimesel korrusel.
Hoone on laotud Columbia kivist, sokli ehitusel on kasutatud sandwich paneele. Pakettaknad on kolmekordse klaaspaketiga. Välisfassaadi viimistluses on kasutatud puitu ja Japest fassaadiplaati.
Hoone on lülitatud AS Gren kaugküttevõrku. Igas büroos on oma küttemõõturid. Mugava ja kaasaegse töökeskkonna tagamiseks on büroopinnad varustatud ventilatsioonisüsteemide ja jahutusega.
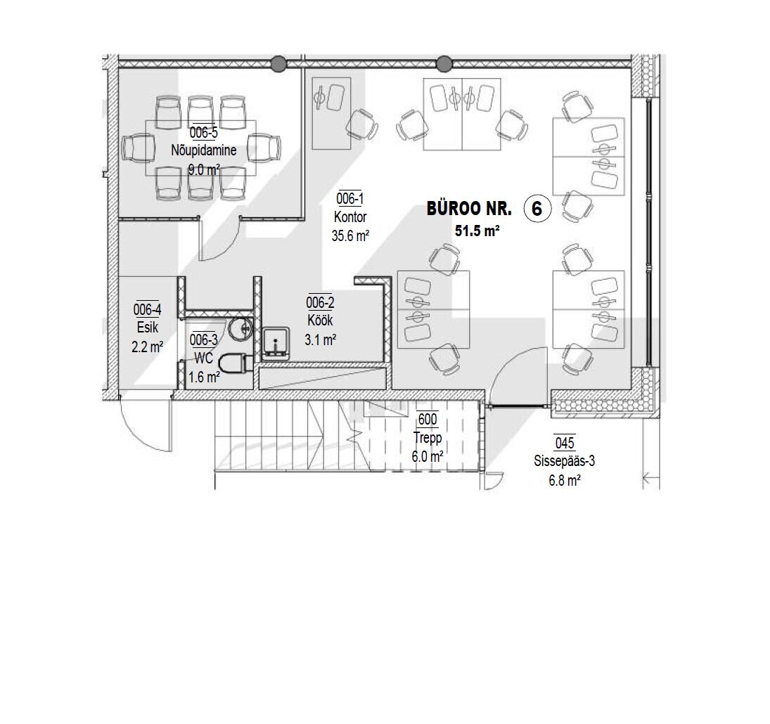
Büroopind sisaldab köögimööblit koos külmkapiga, eraldi nõupidamisruum on varjatud klaasiga ja oma kraanikausiga.
Üürile anda on esimesel korrusel asetsev tänavapoolse vaatega büroopind üürihinnaga 13,5 EUR/ m². Hinnale lisanduvad kommunaalkulud, lepingu vormistamise tasu (400.-) ja käibemaks.
Büroohoone energiamärgis B (energiakasutus130 kwh/m²a).
Sissepääs on nii otse tänavalt kui ka majataguselt parkimisalalt.
Iga äripinna juurde on planeeritud 1-2 parkimiskohta.
Rataste hoiustamiseks on rajatud kinnistule eraldi kõrvalhoone.















